
Die Ästhetik von Holz kombiniert mit der Haltbarkeit von Aluminium
Unsere Holz-Aluminium-Fenster des Systems DUOLINE bieten wir in den beiden Holzarten Kiefer und Meranti mit Profiltiefen des Holzkerns von 68, 78 oder 88 mm an. Für ihre Herstellung wird je nach Art des Holzprofils nur 3- oder 4-fach schichtweise geleimtes und getrocknetes Vollholz der Güteklasse 1A verwendet. Neben einer hohen Materialdichte von min. 450 kg/m3 wird dadurch vor allem eine längere Lebensdauer und eine höhere Beständigkeit gegen Verzug erreicht.
Die äußere witterungsbeständige Aluminiumschale und eine entsprechende Verbindung machen das Fenster stabiler, verbessern beträchtlich die statischen Werte und erhöhen den Lärmschutz. DUOLINE Fenster von DRUTEX helfen bei der Einsparung von Energie, sie erreichen mit einer 3-fach Verglasung einen Wärmedurchgangskoeffizienten von Uw=0,79 W/(m2K)*. Das System bietet zudem zahlreiche Formen (z. B. rechteckig, trapezförmig, rund und andere nichtstandardmäßige Formen) und beliebige Farbvarianten.
DUOLINE Holz-Aluminium-Fenster erfüllen nicht nur die hohen Anforderungen für Energiespar- und Passivhäuser, sondern entsprechen auch den neuesten Trends in der Architektur und modernsten Designansprüchen.
* Referenzfenster DUOLINE 88 aus Merantiholz, Abmessungen 1230 mm x 1480 mm mit Scheibenpaket 4/18/4/18/4 (Ug= 0,5 W/(m2K)
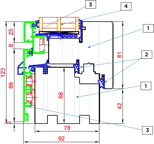
Profil

- Moderne hochwertige Ästhetik durch flächenbündig schließende Aluminium-Verschalung auf der Außenseite und Massivholz-Profil auf der Innenseite für ein angenehmes Wohnklima.
- Einbau- / Profiltiefen von 68, 78 oder 88 mm (Holz) plus 14 mm (Aluminiumschale).
- Rahmen und Flügel (abhängig vom Profiltyp) aus drei- oder vierschichtig verleimtem Meranti- oder Kiefernholz.
- Ausstattung mit Aluminiumschale Mira Contour: die Form der Aluminiumschale erhöht die Standfestigkeit der Profile und gewährleistet in Verbindungen mit dem Holz eine hohe Wärmedämmung bei jeder Witterung.
- Imprägnierung des Holzes in einem gesonderten Prozess, Beschichtung der Aluminiumprofile mit modern wasserlöslichen Pulverlacken.
- Standardmäßig 2 Dichtungen aus TPE.
Verglasung

- Jedes DUOLINE Fenster ist standardmäßig mit einer Zweifachverglasung ausgestattet, bestehend aus einer beschichteten 4 mm Thermo-Float Scheibe, einem 16 mm Stahlabstandhalter und einer 4 mm Float Scheibe. Der Scheibenzwischenraum wird mit Argongas befüllt.
- Mit dem Standard-Glaspaket wird ein Wärmedurchgangskoeffizient von Ug = 1,0 W/(m2K) laut Prüfmethode PN-EN 674 und Ug = 1,1 W/(m2K) nach Berechnungsmethode PN-EN 673 erreicht.
- Je nach gewählter Profiltiefe können auf Wunsch Glaspakete mit bis zu 3 Kammern (4-fach-Verglasung) eingebaut werden.
- Standardmäßig mit Stahlglaskante, optional kann durch den Einbau einer „warmen Kante” (Swisspacer) der Isolationswert noch weiter verbessert werden.
- Es stehen verschiedene Scheibenpakete und Glasarten zur Auswahl, abhängig von Ihren Bedürfnissen (bzgl. Sicherheit, Sonnen- und Lärmschutz) z.B.: Float, Antisol, Reflektofloat, Ornamentglas, Schallschutz-, Sicherheits- (ESG) und Einbruchsicherheitsscheiben (VSG). Zusätzlich können die Fenster individuell mit auf- oder innenliegenden Sprossen gestaltet werden.